Jak akusticky izolovat příčku
-
- Reklama
Jak akusticky izolovat příčku
Ahoj lidi,
netuším, zda se můj dotaz hodí právě sem, ale......
))
Mám k dispozici místnost 5,45 x 3,6 m a rád bych ji přepažil....tím by vznikla režie s mixážním pultem a nahrávací místnost. Rád bych nárazově nahrával i bicí soupravu.
Poradíte mi někdo jak co nejefektivněji řešit příčku, abych zamezil nežádoucím přeslechům (měl klid v režii) a získal co největší vzduchovou neprůzvučnost. Akustické dveře beru jako samozřejmost, ale teď nevím, zda v projektu počítat i s proskleným průzorem.
Řešil někdo z vám podobnou situaci. POMÓÓÓC.....
))
netuším, zda se můj dotaz hodí právě sem, ale......
Mám k dispozici místnost 5,45 x 3,6 m a rád bych ji přepažil....tím by vznikla režie s mixážním pultem a nahrávací místnost. Rád bych nárazově nahrával i bicí soupravu.
Poradíte mi někdo jak co nejefektivněji řešit příčku, abych zamezil nežádoucím přeslechům (měl klid v režii) a získal co největší vzduchovou neprůzvučnost. Akustické dveře beru jako samozřejmost, ale teď nevím, zda v projektu počítat i s proskleným průzorem.
Řešil někdo z vám podobnou situaci. POMÓÓÓC.....
-
Veruk2
Re: Jak akusticky izolovat příčku
Dřevěný zdvojený rám příčky z 4,5cm hranolů, celková tl. rámu 20cm vč. obou rovnoběžných hranolů. Dovnitř kamenná vata Rockwool 20cm. Přiklopit dřevotřískovou deskou (2cm) z obou stran. Pořádně všechny škvíry (v hranolech i deskách) vytmelit. Na desky pak ještě z obou stran sádrokarton. Vytmelit, vybrousit, vymalovat. Neprůzvučnost dokonalá.
Okno 3 skla, uprostřed zkosené. Různé tloušťky skla 0,6 / 10 / 0,8 mm. Slabé místo jsou jen dveře (práh, panty).
Okno 3 skla, uprostřed zkosené. Různé tloušťky skla 0,6 / 10 / 0,8 mm. Slabé místo jsou jen dveře (práh, panty).
Re: Jak akusticky izolovat příčku
Zvažoval jsem modré sádrokartonové desky, z jedné strany zdvojené (tip z diskuzí - nesymetrické obložení prý zlepšuje neprůzvučnost), výplň Rockwool Airrock (nevím jestli ND nebo HD) 180mm).
Co vůbec netuším, kdo mi vyrobí prosklený průzor na míru?!?!?!
A co pak rohy zvukové režie. Pokud do rohů vytvořím ze sádrokartonu předstěnu, kterou naplním Rockwoolem, bude fungovat jako basová past?!?! Nebo na to musím jinak?!?!
Díky za reakci
Co vůbec netuším, kdo mi vyrobí prosklený průzor na míru?!?!?!
A co pak rohy zvukové režie. Pokud do rohů vytvořím ze sádrokartonu předstěnu, kterou naplním Rockwoolem, bude fungovat jako basová past?!?! Nebo na to musím jinak?!?!
Díky za reakci
-
Veruk2
Re: Jak akusticky izolovat příčku
Co to je za novohnus ?!?!
Působíš, že něco o tom víš a pár diskuzí jsi už s tím tématem absolvoval. Tak proč se ptáš, když na původní dotaz postneš svoje vlastní řešení? Ptal ses na příčku a najednou zas řešíš okno a pasti, protože příčku máš už promyšlenou...
Působíš, že něco o tom víš a pár diskuzí jsi už s tím tématem absolvoval. Tak proč se ptáš, když na původní dotaz postneš svoje vlastní řešení? Ptal ses na příčku a najednou zas řešíš okno a pasti, protože příčku máš už promyšlenou...
Re: Jak akusticky izolovat příčku
Ptám se proto, že chci objektivně porovnat i jiná (vyhovující) řešení a na základě toho se sám rozhodnout. Myslím, že proto podobná fóra existují. A jestli tě moje reakce nějak obtěžuje nebo dokonce rozčiluje, můžeš ji příště klidně ignorovat.
Čekal jsem spíše konstruktivní doplnění.
Máš nějaké ke zmiňovaným pasovým pastem?!?
Čekal jsem spíše konstruktivní doplnění.
Re: Jak akusticky izolovat příčku
Na tvém místě, bych se zamyslel i nad touto otázkou.
Nebude tvoje místnost po přepažení rozdělena na dvě místnosti,
které jsou obě příliš malé, nevhodné i na nahrávání i na režii?
Minimálně bych si to promyslel, jestli fakt plánuješ nahrávání bicích,
případně celých kapel(rytmiky) naráz. Někdy.
Koncept domácího studia může být a často i je vše v jedné místnosti.
Je tu možnost, že vysolíš i jen za materiál na stavbu příčky slušnou sumu
a když to nedělá, nenavrhuje profesionál tak to nemusí mít žádanej efekt.
Nebude tvoje místnost po přepažení rozdělena na dvě místnosti,
které jsou obě příliš malé, nevhodné i na nahrávání i na režii?
Minimálně bych si to promyslel, jestli fakt plánuješ nahrávání bicích,
případně celých kapel(rytmiky) naráz. Někdy.
Koncept domácího studia může být a často i je vše v jedné místnosti.
Je tu možnost, že vysolíš i jen za materiál na stavbu příčky slušnou sumu
a když to nedělá, nenavrhuje profesionál tak to nemusí mít žádanej efekt.
Re: Jak akusticky izolovat příčku
Ohledně prosklení - vzhedem k nárazovému použití bych možná zvážil řešení typu webkamera - monitor (pochopitelně obousměrné). Mohlo by to na dorozumívání stačit, cenově například s jednoduchými tablety (potřeba najít řešení s externí kamerou) vyjít i výrazně levněji a neprůzvučnost dokonalá....
Něco takového jde, i když to asi není zatím úplně standardní ani jendoduché:
Něco takového jde, i když to asi není zatím úplně standardní ani jendoduché:
1) Audiopro s.r.o. - servis, instalace, akustika, podpora: http://www.audiopro.cz
2) Práce všeho druhu (měření, vývoj, poradenství,...)
2) Práce všeho druhu (měření, vývoj, poradenství,...)
Re: Jak akusticky izolovat příčku
Jo, basové pasti takhle nějak fungovat budou. Když nařežeš vatu na trojúhelníky, přední "stěnu" toho rohu ani nemusíš dělat ze sádrokartonu, ale třeba jen ze sololitu, který můžeš něčím potáhnout kvůli estetice (tkanina, tvarovaný molitan alias "levná akustická pěna").
Velký problém ale opravdu vidím v rozměrech. Kde tu příčku chceš udělat? Abys na nahrávání neměl nepříjemný čtverec a z režie kutloch, kde se vejde stůl, židle a hned stěna, od které se to bude hned odrážet.
Taky jsem si dělal "ministudio", ale jen nahrávací místnost má víc než to tvé nepřepažené. Režie má 4x4 metry a osobně to považuju za minimum.
Nechceš věnovat pozornost nahrávací místnosti tak jak je a režii dělat z jiného "pokoje"?
Velký problém ale opravdu vidím v rozměrech. Kde tu příčku chceš udělat? Abys na nahrávání neměl nepříjemný čtverec a z režie kutloch, kde se vejde stůl, židle a hned stěna, od které se to bude hned odrážet.
Taky jsem si dělal "ministudio", ale jen nahrávací místnost má víc než to tvé nepřepažené. Režie má 4x4 metry a osobně to považuju za minimum.
Nechceš věnovat pozornost nahrávací místnosti tak jak je a režii dělat z jiného "pokoje"?
Re: Jak akusticky izolovat příčku
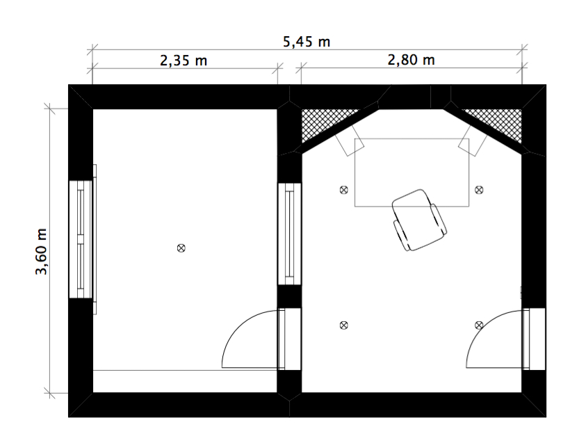
Nebude to zas tak malé. 2,35 x 3,60 nahrávací místnost a 2,80 x 3,60 pro režii.
Re: Jak akusticky izolovat příčku
No, z těch 2,5 m tě ještě něco ukousnou akustické úpravy a už seš v háji...
Já bych, svým ryze amatérským odhadem, otočil režii o 90°, čímž získáš víc prostoru pro nahrávání.
Na okno bych se vykašlal a nahradil ho kamerou (já mám v rohu pod stropem průmyslovku), nebo, pokud bys ho moc chtěl, tak ho mít po levé ruce.
Nějak takhle (viz příloha). Nahrávací místnost je "skoro-čtverec", což v danou chvíli vidím jako nejmenší zlo.
Já bych, svým ryze amatérským odhadem, otočil režii o 90°, čímž získáš víc prostoru pro nahrávání.
Na okno bych se vykašlal a nahradil ho kamerou (já mám v rohu pod stropem průmyslovku), nebo, pokud bys ho moc chtěl, tak ho mít po levé ruce.
Nějak takhle (viz příloha). Nahrávací místnost je "skoro-čtverec", což v danou chvíli vidím jako nejmenší zlo.
- Přílohy
-
- 5,5x3,6.png (7.9 KiB) Zobrazeno 5768 x
Re: Jak akusticky izolovat příčku
Kamil ti to pekne vyresil.
Nahravat bici v mistnosti o rozmeru 2.3 metru by bylo asi zajimave, sak to je rozmer, kdy je clovek skoro schopny se tech zdi dotknout roztazenyma rukama s palickama.
Nahravat bici v mistnosti o rozmeru 2.3 metru by bylo asi zajimave, sak to je rozmer, kdy je clovek skoro schopny se tech zdi dotknout roztazenyma rukama s palickama.
Re: Jak akusticky izolovat příčku
Tady přikládám ilustraci pro představu, aby nedošlo k nepochopení 
Re: Jak akusticky izolovat příčku
No, porad si myslim, ze je to dost malinke, ale asi to bude stacit.
Nezapomen na dvojite dvere.
Nezapomen na dvojite dvere.
Re: Jak akusticky izolovat příčku
Ty zminovane basove pasti - klasicka basova past je dlouha 1/4 vlnove delky, uvnitr zatlumena a otvorem spojena v nejlepsim miste (blizko kmitny daneho modu nebo taktnejak, abych nekecal) s mistnosti - proste dira.
Potrebujes tedy znat hodnoty problematickych frekvenci (nejlepe merenim) a tomu prizpusobit konstrukci
Potrebujes tedy znat hodnoty problematickych frekvenci (nejlepe merenim) a tomu prizpusobit konstrukci
1) Audiopro s.r.o. - servis, instalace, akustika, podpora: http://www.audiopro.cz
2) Práce všeho druhu (měření, vývoj, poradenství,...)
2) Práce všeho druhu (měření, vývoj, poradenství,...)







